Горный дом в осиновой роще в штате Вайоминг - «Клуб - Юмора»
✔ Клуб - Юмора. → Фото и видео приколы и всё это на нашем портале, наши журналисты стараються для вас, |
Проект Paintbrush Residence от архитектурной студии CLB Architects выполнен в 2023 году вблизи горнолыжного городка Джексон, штат Вайоминг, США. Расположенная в живописной осиновой роще, резиденция напоминает домик на дереве, демонстрирующий тесную связь с окружающей природой.
1.

Первоначально на этом месте стояла старая темная хижина, построенная в 1970-х годах. Затем, в 2003 году, CLB Architects заменили ее на дом, в строительстве которого были использованы устойчивые к атмосферным воздействиям материалы, такие как ржавая сталь и кедр, которые со временем обеспечили полную интеграцию объекта в природную среду.
Спустя 20 лет недвижимость была передана новому владельцу, который и стал заказчиком проекта. Стремясь обновить дом, сохранив, при этом оригинальный стиль дизайна, новый хозяин обратился к CLB Architects с просьбой пересмотреть проект в преломлении к современным реалиям и с учетом пожеланий его семьи.
Проект представляет собой модернизацию традиционного горного дома, спроектированного CLB Architects двадцать лет назад. Реконструкция дома практически не затронула первоначальную структуру и универсальную пространственную организацию жилища. Обновление коснулось поверхностей экстерьера и интерьера, которые пришли в негодность или потеряли эстетическую привлекательность.
В частности, была установлена новая крыша, перекрашена главная входная дверь, отполирована деревянная палуба. Оригинальный деревянный сайдинг на фасадах был заменен на новый, выполненный из древесины кедра. В то же время, фасады, обшитые сайдингом из окисленной стали, остались на месте, поскольку не потеряли своих практических и эстетических качеств. Ремонт затронул и лестницу дома, которая находится рядом с двухэтажным окном.
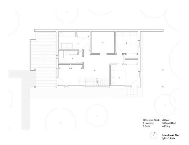
Внутренняя планировка дома площадью 223 квадратных метров осталась практически без изменений. Основное внимание было уделено обновлению поверхностей полов, стен и потолка, а также дверей, системы освещения и декора. При этом, упор был сделан на выбор недорогих, но качественных и долговечных материалов.
Первый этаж дома по-прежнему занимают две гостевые спальни, ванная комната, лаунж зона с видом на рощу, прачечная и прихожая, расположенная близко к склону холма. Большое двухэтажное окно, проходящее вдоль главной лестницы, обеспечивает нижний уровень достаточным количеством дневного света. Интерьер этажа также был обновлен в соответствии с общей стилистикой дома.
На верхнем уровне размещены социальная зона открытого плана с кухней, столовой и гостиной, а также главная спальня с ванной комнатой. Консольные выступы, обшитые древесиной кедра, обеспечивает тесную связь интерьера с окружающим ландшафтом. Высокие потолки отмечены непрерывной полосой ленточных окон, которые позволяют естественному свету проникать внутрь.
Новый дизайн интерьера впечатляет теплотой и уютом. Современная отделка и функциональная мебель делают пространство элегантным и комфортным. Так, в гостиной установлен новый диван итальянской фабрики Ligne Roset и шезлонг Le Corbusier LC4 итальянской компании CASSINA. Специально для данного проекта архитекторами CLB Architects был разработан шкаф для хранения с раздвижной дверью, который выполнен из древесины дуба.
Обновления коснулись и кухни. В ней появился новый кухонный остров, для изготовления которого были использованы эбеновый дуб и черный гранит. А новый фартук был изготовлен из кварцита с кожаной отделкой. Модули кухонных шкафов из белого дуба, обрамленные черненой сталью, имитируют структурно-выразительный дизайн экстерьера.
В обеденной зоне подвесные полки были заменены стильным шкафом, который был разработан CLB Architects и изготовлен в сотрудничестве с мастером по металлу и столярной мастерской JH Cabinets. Мебель столовой включает в себя стулья Duda с эргономичной спинкой и стол Amsterdam с четкими геометрическими углами от Sossego Design, а также подвесной светильник испанской компании Vibia .
Главная ванная комната приобрела стильный современный вид. Отдельно стоящая ванна была перенесена ближе к окну, а потолок и стены отделаны плиткой и теплым деревом. Выполненный из кварцита новый туалетный столик добавляет к пространству гламурный штрих.
2.

3.

4.

5.

6.

7.

8.

9.

10.

11.

12.

13.

14.

15.

16.

17.

18.

19.

20.

21.

22.

23.

24.

25.

26.

Источник: https://coolhouses.ru/arhitektura/modernizirovannyy-gornyy-dom-v-zhivopisnoy-osinovoy-roshche.html
Лучшие новости сегодня
( 0 ) Комментарии